office
CITY
ARCHITECTURE
TOURISM
news
contact
PHYLEM
office
CITY
ARCHITECTURE
TOURISM
news
contact
PHYLEM
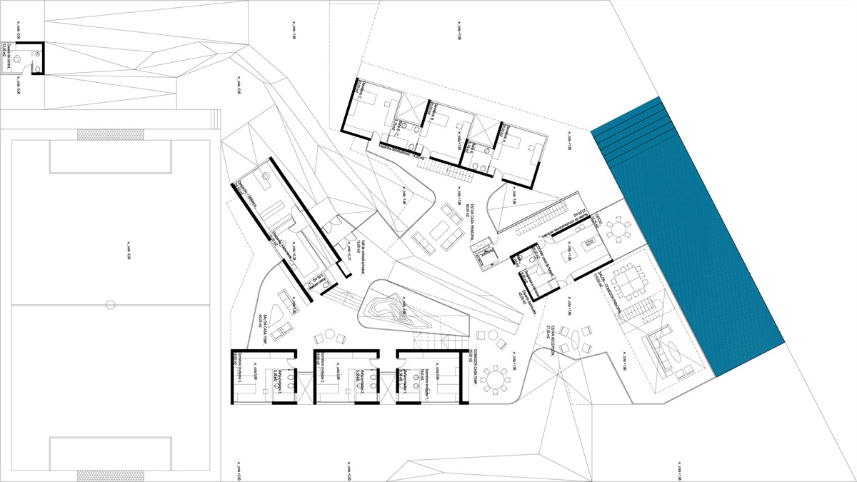
Barn House
↑
Back to Top